
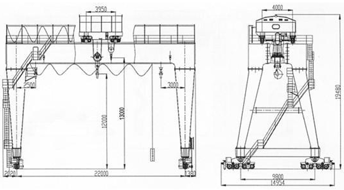
ভারী লিফট কপিকল, ডবল বিম গ্যান্ট্রি ক্রেন 30 টন
হুইস সহ ডাবল বিম জেন্ট্রি ক্রেন সাধারণ উত্তোলন এবং আনলোড লোড করার জন্য গুদাম বা রেলপথের বাইরের বাইরে প্রয়োগ করা হয়। এই ধরনের কপিকল সেতু, সমর্থক পা, কপিকল ভ্রমণ অঙ্গ, শক্তিশালী উত্তোলন পেষণকারী, বৈদ্যুতিক সরঞ্জাম এবং নিয়ন্ত্রণ ব্যবস্থা সঙ্গে ট্রলি গঠিত হয়। তার ভারী দায়িত্ব নকশা হিসাবে, এটি ব্যাপকভাবে সব ধরনের শিল্প ক্ষেত্রে ব্যবহার করা যেতে পারে।




